
産品簡介
IHE系列(liè)化工流程泵是單(dan)級單吸懸臂式離(lí)心泵,其标{己👉性能(neng)和尺寸符合GB5662-85《軸向(xiàng)吸入離心泵(16bar)标id、性(xing)能和尺寸》,等同采(cǎi)用IS02858-1984标✔️準。制造技術(shu)采用IS0S199-86.IHE系列化工流(liu)程泵,化工流程泵(bèng),化工流程泵設備(bèi)廣泛用于化工。化(huà)肥。電力。冶金。造紙(zhǐ)。制藥、台成纖維等(děng)行業,在磷複肥行(háng)業中主要應用于(yú)循環水、給料👈泵、污(wu)水泵、母液🏃♂️泵、硫酸(suān)泵等工位,輸送不(bú)舍顆粒的腐蝕性(xing)❤️介質,或不允許有(you)污染的介質
性能(néng)範圍
流量3 4~460mVh
溫度:-30℃ - 150℃,特(te)殊可達180℃
揚程:3.6~132m
設計(ji)壓力:1.6Mpa
型号說明

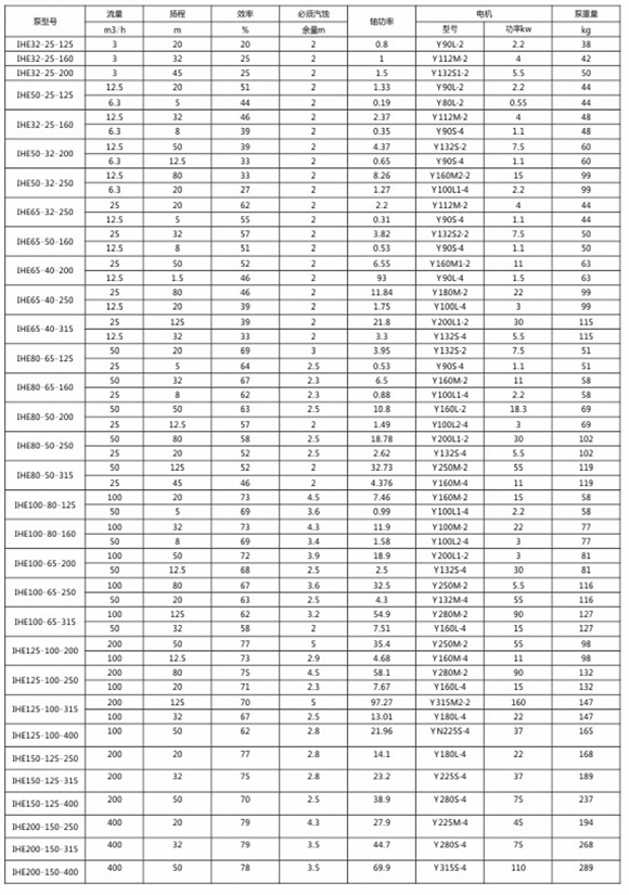
IHE系(xì)列參數表

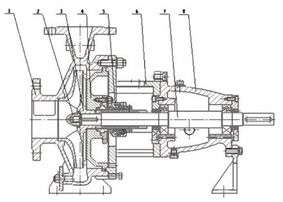
IHE結構特(tè)點

(1)泵體;(2)葉輪螺母(mǔ);(3)葉輪件;(4)泵蓋;(5)密封(feng)部件;(6)中間支架;(7)軸(zhou)🏒;(8)懸架部件
IHE泵軸加(jiā)粗,剛性好,運行平(ping)穩;
采用後拉式結(jie)構,帶中間節膜片(piàn)聯軸器,維修時不(bu)用拆卸💋泵體,電機(jī),管線;
軸封可選用(yong)填料密封,内裝及(jí)外裝式單端面機(jī)械密封雙端🌈面機(jī)械密;
新安裝的管(guan)線應沖洗幹淨,如(rú)介質易結晶,要定(ding)期沖洗機械密封(feng);
停車後和重新啟(qi)動前部應将密封(fēng)面沖洗幹淨。
過流(liú)部件材質
過流部(bù)件材質ifiCr18Ni9Ti、C4、304、304L. M02Ti、904(U86)、20#台金、CD4MCu等材(cái)料,軸it2205、316L、304等材質。
| 聯 系(xi) 人:王總 | 熱(rè)門搜索:煙氣脫硫(liú)泵批發,電廠脫硫(liu)泵價格
聲明:部分(fèn)素材來源于網絡(luo),如有侵權,請告知(zhī)我們删除! 備案号(hao):鄂ICP備16020412号 |
·•
·•
•
聯系我們(men)
添加微信
電話咨(zi)詢